Fox Den Projects

Joanna Gillespie, Principal


About the Firm

Fox Den Projects provides expert interior design and construction management services for residential projects. With a deep understanding of design aesthetics and construction logistics, we work closely with homeowners and building firms to bring their visions to life. From managing timelines and coordinating contractors to overseeing material selections and installations, we ensure every detail is executed precisely and carefully. Our mission is to create seamless, stress-free experiences for our clients, delivering beautifully finished spaces that reflect their unique style and needs. Whether renovating a single room or embarking on a full-scale home remodel, Fox Den is dedicated to turning your design dreams into reality.

Projects

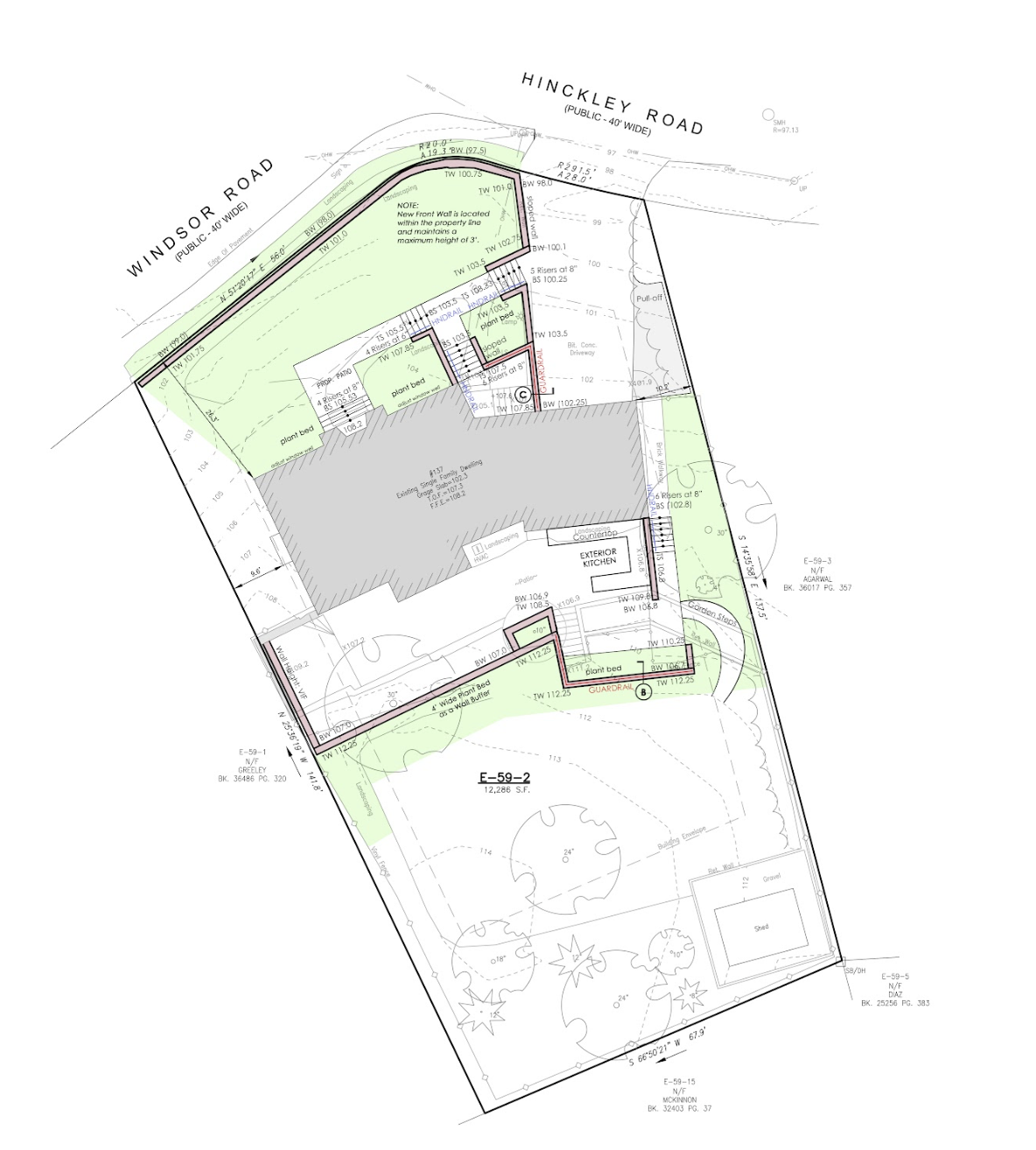
  • Historic Home Interior Renovation, Private Residence, Milton, MA, 2015 – 2024: Phase 1: Renovation of an outdated entry, kitchen, den, bathroom, and guest room for a circa 1935 Colonial Revival home with John Kelsey (architect) and South Street Custom (builder); Phase II: Renovation of second-floor bathrooms and office; Phase III: Renovation of the garage, laundry room, and basement lounge. Phase IV: Extensive hardscaping and landscaping with Bill Madden (landscape design), Morse Engineering Co. (survey), and Anthony Musto (builder).

  • Historic Home Interior Design, Private Residence, Milton, MA, 2016

  • Holiday Home Interior Design, Private Residence, Mattapoisett, MA, 2018-2019

  • Investment Condo Management & Upgrades, Milton, MA, 2017-2024

  • Historic Home Interior Renovation, Private Residence, West Boylston, MA, 2020

  • Cedar & Deed Homes, consulting services for design firm, Pittsford, NY, 2024

Press

ROLE

Principal

FIRM

Fox Den Projects, LLC

DATES

2015-present